欢迎访问博彩网站88必威 88必威中国 官方网站!
博彩网站88必威
当前位置:舞台阻燃幕布 > 必威客服app下载官网 > 技术交流技术交流
防火隔离幕Safety curtain——舞台、观众厅分隔 阻断火源及有害烟气的扩散
  • 2022-08-29
  • 通用舞台
  • 2473

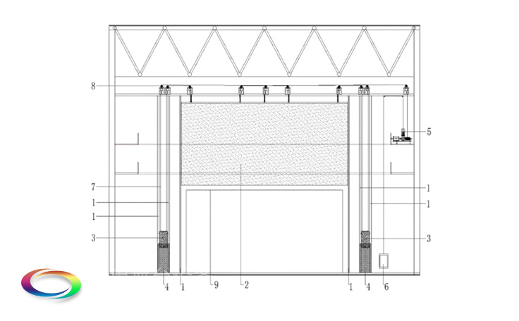
防火隔离幕Safety curtain——舞台、观众厅分隔 阻断火源及有害烟气的扩散

  剧场是群众聚集的公共场所,剧场火灾往往造成生命和财产的重大损失,而舞台又是剧场火灾发生的危险区。舞台易发生火灾的主要原因是:舞台上空及两侧灯具多,灯具产生的高温容易烤燃与之相邻的幕布等易燃物;演出中经常使用效果烟火,因明火使用不当造成火灾;舞台内设备多,带电设备及电路复杂,电线或带电设备失火也多有发生;此外,管理不善也是发生火灾的原因之一。由于台塔很高,一旦舞台上失火,台口相当于烟囱效应的“进风口”,冷空气中的氧气促进燃烧。而且,由于观众厅使用了大量易燃装饰材料,火势极易向观众厅蔓延,火焰和有害烟气有可能造成人身伤害。因此,需要一种设备,可以在舞台发生火灾时,迅速将舞台和观众厅分隔成两个防火区域,防止燃烧抽吸氧气使火势进一步扩大,同时可阻断火源及有害烟气的扩散,争取更多的逃生时间。

防火隔离幕Safety curtain——舞台、观众厅分隔 阻断火源及有害烟气的扩散

  设置在舞台台口处,在火灾情况下可迅速关闭台口,隔离舞台与观众厅或舞台以外的其他区域,防止火灾蔓延的设备。刚性结构,有规定的耐火极限、抗风压极限、隔离密封极限、关闭过程时间极限及安全控制等特性要求。可有隔声功能,当设置在侧台口或后台口时主要以隔声功能为主。

  台口防火幕是一道安全防火专用门,在剧场发生火灾事故或每场演出结束时,该防火幕落下,把舞台与观众厅分隔成两个防火区域。

  在紧急情况下,防火幕能在起动后内,靠重力下降到位;当距主舞台面2.5米时开始阻尼下降,接近台面时再次减速,以避免伤及人及对台面的冲击。防火幕的耐火极限符合国家相关标准,能承受观众厅与舞台之间由于火灾引起的压差。

  在防火阻燃幕布的两侧设有运行导轨,幕体四周与建筑墙体应装有密封装置,以便防火幕处在下降位置时能有效密封烟和火。

  带有提升、下降和紧急停车按钮的操作盘可以实现就地操作。手动释放机构设置于台口内侧,并在消防控制室内有运行控制和状态显示。

  防火阻燃幕布传动形式要求为:钢丝绳曳引带配重(对称布置)的方式,电动上升,靠自重阻尼分不同速度段下降。

更多产品资料及报价,详询请致电。
李经理:138-0143-6501
微信
手机
QQ在线询价
Baidu
map